潔凈手術室醫用氣體管道連接說明
2023-11-01
標久醫用
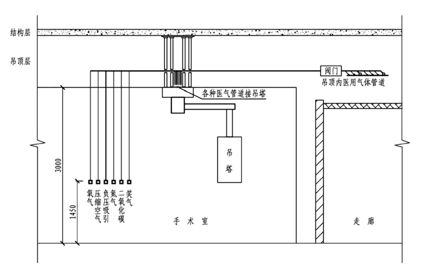
醫院潔凈手術室醫用氣體一般配置氧氣、壓縮空氣、真空吸引、二氧化碳笑氣、氮氣及麻醉廢氣排放等氣體,也可以根據具體需要調整醫用氣體的種類配置,每種氣體都需要獨立的氣體傳輸管道,根據醫用氣體工程技術規范GB50751-2012規定,醫用氣體管道可采用無縫脫脂不銹管和無縫脫脂銅管。

手術室區域各類醫用氣體單口供氣壓力 (MPa):
氧氣:0.40~0.45
笑氣:0.40-0.45
真空吸引:-0.03~-0.07
二氧化碳:0.35~0.40
壓縮空氣:0.40~0.45
氮氣:0.90-0.953

末端接入吊塔及配氣箱支管道一般采用紫銅管,
| 醫氣名稱 | 管道直徑 |
| 氧氣 | 8-10mm |
| 壓縮空氣 | 8-10mm |
| 真空吸引 | 10-12mm |
| 氮氣 | 10-12mm |
| 笑氣 | 8-10mm |
| 二氧化碳 | 8-10mm |
| 麻醉廢氣 | 10-12mm |

主管道可根據用氣點總數量設計滿足100%使用場景下的管道管徑,醫用氣體管道與其他管道問距應滿足《醫用氣體工程技術規范》GB 50751-2012中表5.110的要求,潔凈手術室醫用氣體總管,應設置區城報警箱、二級減壓箱及閥門等設備。
